- Hage og utemiljø
- Baderomsinnredning
- Dører og porter
- Drivhus
- Verktøy og redskap
- Vinduer
- Sport og fritid
- Treningsapparater
- Boder og hytter i byggesett
- Lagerrydding
- Hjem og dekor
- Hus og bygg
- Bil og garasje
- Tilbud
- Nyheter
- Outlet
- Alle produkter
- Varemerker
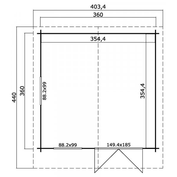
Anneks/ bod Truls A - 12,9 m²
Dette produktet er utgått
Begynner du å få lite plass og praktisk og enkelt ønsker å utvide? Kanskje et gjestehus på tomten, et uthus, bod eller et hus for tenåringsbarna? Et anneks kan også fungere bra, for eksempel som kolonihytte eller sommerhus.
Monteringsklar
Dette bygget leveres komplett som sett og monteres enkelt etter den medfølgende tegningen. Hytta har et laftet tømmerdesign og struktur som gjør den både lettmontert og stabil. Alt materiale leveres ubehandlet, det anbefales å behandle med grunningsolje, utendørsmaling eller dekkmaling tidlig. Inkludert er alt som trengs for montering, d.v.s. spiker, skruer, etc.
Tak/gulv og fundament
Tak og gulv består av 18 mm rupanel, dette er inkludert i byggesettet. Behandlede bærebjelker til fundamentet er også inkludert. Grunnmuren må man lage selv, materialer til dette er ikke inkludert. Hvordan grunnmuren lages avhenger av jordforhold, bodens utseende og hva du selv foretrekker. Enten kan en plate støpes eller et sokkelfundament på for eksempel hageplater eller lette lecablokker kan brukes.
Takpapp er inkludert. Shingel i flere forskjellige farger finnes også å velge til.
Grunnleggende produktinformasjon
- Materiale: Nordisk gran
- Veggtykkelse: 28 mm
- Yttermål vegger: 360x360 cm
- Gulvareal: 12,56 m²
- Mønehøyde: 245,1 cm
- Vegghøyde: 193,8 cm
- Takoverheng: 60 cm
- Takareal: 18,48 m²
- Takvinkel: 16°
- Vindu 2 x vindu (882 x 990 mm), 1-glass innovervendende med tiltfunksjon
- Dør: laget av massiv gran med aluminiumterskel, inkl. låsesylinder og håndtak
- Vekt: 882 kg
NB! Lossing inngår ikke for denne leveringen. For å kunne ta imot dette produktet kan det være at du må ha tilgang til truck eller hjullaster.
Les mer
Slik håndterer vi kundeanmeldelser
Vi sikrer at våre produktanmeldelser kommer fra ekte kunder gjennom følgende prosess:
Etter hver levert bestilling sender vi en unik lenke til kunden via e-post. Gjennom denne lenken kan kunden kun anmelde de spesifikke produktene som inngikk i den aktuelle bestillingen – ingen andre produkter kan anmeldes via samme lenke. På anmeldelsessiden har kunden også mulighet til å vurdere oss som forhandler. Denne metoden garanterer at alle anmeldelser kommer fra kunder som faktisk har kjøpt og mottatt produktene de anmelder.
Publisering av anmeldelserVi publiserer alle anmeldelser som følger våre retningslinjer, uavhengig av vurdering. Det betyr at både positive og negative tilbakemeldinger vises, så lenge de ikke inneholder upassende språk, personangrep eller mangler relevans.
Anmeldelser som kun gjelder leveringsproblemer (f.eks. forsinkelser) publiseres ikke på produktsiden, siden de ikke vurderer selve produktet. Slike tilbakemeldinger kan derimot gis i vurderingen av oss som forhandler.
Beregning av gjennomsnittlig vurderingDen gjennomsnittlige vurderingen for et produkt vises som et gjennomsnitt av alle publiserte anmeldelser for akkurat det produktet.
Les mer
- Lave priser og stort utvalg
- Kun kvalitetsprodukter!
- Betal 14 dager etter levering uten ekstra kostnader!
- Rask leveranse!
- Hyggelig kundetjeneste!
- Våre kunnskapsrike og hyggelige kundebehandlere er her for å hjelpe deg og svare på spørsmål knyttet til kjøpet ditt!
Ved å bli medlem godtar du Hjemfint.no Retningslinjer for personvern.






