Anneks Kajsa B - 14 m²
Dette produktet er utgått
Begynner du å få litt dårlig med plass, og vil utvide på en praktisk og enkel måte? Kanskje et lite gjestehus på tomten, et anneks, bod eller et eget hus til tenåringene? Et anneks kan dessuten fungere bra som for eksempel hus på en kolonihage eller som sommerhytte.
Dette annekset leveres komplett som et byggesett, og monteres enkelt i henhold til den medfølgende tegningen. Bygningen har et laftet design og konstruksjon, noe som gjør den både lettmontert og stabil. Alt materiale leveres ubehandlet, det anbefales å raskt behandle med grunningsolje, grunning eller dekkmaling. Alt du trenger til montering er inkludert, dvs. spiker, skruer etc.
Tak/gulv og grunnmur
Tak og gulv er laget av 18 mm rupanel, dette følger med i byggesettet. Behandlede bærebjelker til grunnmuren følger også med. Selve grunnmuren får man gjøre selv, materiale til dette medfølger ikke. Hvordan fundamentet skal lages er avhengig av grunnforholdene, utseendet til huset og egne preferanser. Enten kan en såle støpes, eller så kan en fundamentgrunn med for eksempel heller eller lettklinkerblokker benyttes.
Det anbefales at taket dekkes med ytterligere beskyttelse for lang levetid, slitesterk og motstandsdyktig selvklebende takpapp finnes som tilvalg.
Leveres med 5 års garanti.
- Materiale: Nordisk gran
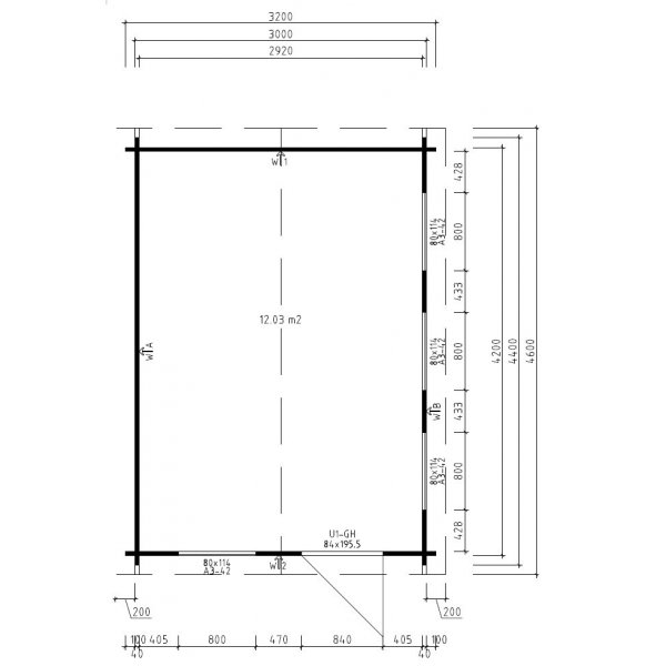
- Yttermål vegger: 440x320 cm
- Vegghøyde: 2,05 m
- Mønehøyde: 2,45 m
- Veggtykkelse: 40 mm
- Gulvareal: 12 m²
- Takareal: Ca 13,5 m²
- Gulv: 18 mm
- Dør: Delvis glass enkeltdør (0,85 x 1,99 m), inkludert sylinderlås og håndtak
- Vinduer: 4 x åpningsbare vinduer (0,81 x 1,19 m), 1-glass (3 mm)
NB! Lossing inngår ikke for denne leveringen. For å kunne ta imot dette produktet kan det være at du må ha tilgang til truck eller hjullaster.
Les mer
Slik håndterer vi kundeanmeldelser
Vi sikrer at våre produktanmeldelser kommer fra ekte kunder gjennom følgende prosess:
Etter hver levert bestilling sender vi en unik lenke til kunden via e-post. Gjennom denne lenken kan kunden kun anmelde de spesifikke produktene som inngikk i den aktuelle bestillingen – ingen andre produkter kan anmeldes via samme lenke. På anmeldelsessiden har kunden også mulighet til å vurdere oss som forhandler. Denne metoden garanterer at alle anmeldelser kommer fra kunder som faktisk har kjøpt og mottatt produktene de anmelder.
Publisering av anmeldelserVi publiserer alle anmeldelser som følger våre retningslinjer, uavhengig av vurdering. Det betyr at både positive og negative tilbakemeldinger vises, så lenge de ikke inneholder upassende språk, personangrep eller mangler relevans.
Anmeldelser som kun gjelder leveringsproblemer (f.eks. forsinkelser) publiseres ikke på produktsiden, siden de ikke vurderer selve produktet. Slike tilbakemeldinger kan derimot gis i vurderingen av oss som forhandler.
Beregning av gjennomsnittlig vurderingDen gjennomsnittlige vurderingen for et produkt vises som et gjennomsnitt av alle publiserte anmeldelser for akkurat det produktet.
Les merBestilling gikk raskt og smerte fritt, Leveringstid var estimert til 15 dager, kom på døren etter 17 dager så det er innenfor. Kommer til å bestille igjen.
👍🏼
Rett produkt og lett å bestille. Varene kom etter 5 uker. Så en konkurrent oppga 8 ukers leveringstid, så dette var bra. Savnet en melding med sporingsnummer da varen ble sendt. Ellers fornøyd
Leveringen kunne tatt mindre tid.
Er fornøyd både med kundebetjeinga var enkelt å bestille.Varen kom som ventet fikk levert på trappa,supert.
Jeg er utrolig fornøyd
Fornøyd med varer og service
Jeg har avbestilt varen!
Fikk de eg skulle å grei levering
Litt problemer med transporten. Jeg var kanskje litt utålmodig. Alt ordner seg til slutt.
Topp service og god underveis kommunikasjon/oppfølging !
3 av 4 synes at denne anmeldelsen var nyttig.
Hjalp denne anmeldelsen deg?
Hjalp denne anmeldelsen deg?
0 av 1 synes at denne anmeldelsen var nyttig.
Hjalp denne anmeldelsen deg?
1 av 2 synes at denne anmeldelsen var nyttig.
Hjalp denne anmeldelsen deg?
1 av 2 synes at denne anmeldelsen var nyttig.
Hjalp denne anmeldelsen deg?
0 av 2 synes at denne anmeldelsen var nyttig.
Hjalp denne anmeldelsen deg?
0 av 1 synes at denne anmeldelsen var nyttig.
Hjalp denne anmeldelsen deg?
Hjalp denne anmeldelsen deg?
Hjalp denne anmeldelsen deg?
- Lave priser og stort utvalg
- Kun kvalitetsprodukter!
- Betal 14 dager etter levering uten ekstra kostnader!
- Rask leveranse!
- Hyggelig kundetjeneste!
- Våre kunnskapsrike og hyggelige kundebehandlere er her for å hjelpe deg og svare på spørsmål knyttet til kjøpet ditt!
Ved å bli medlem godtar du Hjemfint.no Retningslinjer for personvern.






