- Hage og utemiljø
- Baderomsinnredning
- Dører og porter
- Verktøy og redskap
- Drivhus
- Vinduer
- Treningsapparater
- Sport og fritid
- Lagerrydding
- Boder og hytter i byggesett
- Hjem og dekor
- Hus og bygg
- Bil og garasje
- Tilbud
- Nyheter
- Outlet
- Alle produkter
- Varemerker
Anneks Karl A - 19 m²
Dette produktet er utgått
Begynner du å få litt dårlig med plass, og vil utvide på en praktisk og enkel måte? Kanskje et lite gjestehus på tomten, et anneks, bod eller et eget hus til tenåringene? Et anneks kan dessuten fungere bra som for eksempel hus på en kolonihage eller som sommerhytte.
Monteringsferdig
Dette annekset leveres komplett som et byggesett, og monteres enkelt i henhold til den medfølgende tegningen. Bygningen har et laftet design og konstruksjon, noe som gjør den både lettmontert og stabil. Alt materiale leveres ubehandlet, det anbefales å raskt behandle med grunningsolje, grunning eller dekkmaling. Alt du trenger til montering er inkludert, dvs. spiker, skruer etc.
Tak/gulv og grunnmur
Tak og gulv er laget av 18 mm rupanel, dette følger med i byggesettet. Behandlede bærebjelker til grunnmuren følger også med. Selve grunnmuren må man sette opp selv, materiale til dette følger ikke med. Hvordan grunnmuren skal konstrueres er avhengig av grunnforholdene, utseende til bygningen og hva man selv foretrekker. Enten kan en plate støpes, eller så kan en fundamentgrunn med for eksempel heller eller lettklinkerblokker benyttes.
Det anbefales at taket dekkes med beskyttelse for lang levetid, slitesterk og motstandskrig selvklebende takpapp finnes som tilvalg.
Leveres med 5 års garanti.
- Materiale: Nordisk gran
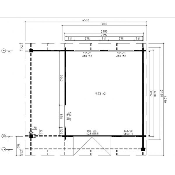
- Yttermål vegger: 450x420 cm
- Vegghøyde: 2,1 m
- Mønehøyde: 2,35 m
- Veggtykkelse: 44 mm
- Gulvareal: 9,23 m²
- Takareal: Ca 20 m²
- Gulv: 18 mm
- Dør: Dobbeltdør i glass (1,5 x 1,88 m), inkludert sylinderlås og håndtak
- Vinduer: 2 x faste panoramavinduer (0,79 x 1,79 / 0,51 x 1,79 m), 2 x åpningsbare vinduer (0,9 x 0,5 m), 2-glass (2x3 mm)
NB! Lossing inngår ikke for denne leveringen. For å kunne ta imot dette produktet kan det være at du må ha tilgang til truck eller hjullaster.
Les mer
Slik håndterer vi kundeanmeldelser
Vi sikrer at våre produktanmeldelser kommer fra ekte kunder gjennom følgende prosess:
Etter hver levert bestilling sender vi en unik lenke til kunden via e-post. Gjennom denne lenken kan kunden kun anmelde de spesifikke produktene som inngikk i den aktuelle bestillingen – ingen andre produkter kan anmeldes via samme lenke. På anmeldelsessiden har kunden også mulighet til å vurdere oss som forhandler. Denne metoden garanterer at alle anmeldelser kommer fra kunder som faktisk har kjøpt og mottatt produktene de anmelder.
Publisering av anmeldelserVi publiserer alle anmeldelser som følger våre retningslinjer, uavhengig av vurdering. Det betyr at både positive og negative tilbakemeldinger vises, så lenge de ikke inneholder upassende språk, personangrep eller mangler relevans.
Anmeldelser som kun gjelder leveringsproblemer (f.eks. forsinkelser) publiseres ikke på produktsiden, siden de ikke vurderer selve produktet. Slike tilbakemeldinger kan derimot gis i vurderingen av oss som forhandler.
Beregning av gjennomsnittlig vurderingDen gjennomsnittlige vurderingen for et produkt vises som et gjennomsnitt av alle publiserte anmeldelser for akkurat det produktet.
Les merLitt lengre leveringstid
Jeg har avbestilt varen!
Fikk varen som bestilt men det var først etter at jeg hadde bestilt inkludert betalt at dere opplyste det var mye å gjøre og varene blir forsinket etter standard leveringstider. Ikke bra!
Fikk de eg skulle å grei levering
Fek ikkje varen, men gid informaasjon.
Enkel bestilling og kjapp levering
Fornøyd. Fint brukt og prisen
Fornøyd med varer og service
leveringstiden er langt.
Grei bestilling men alt for sen leveranse. Flere uker senere enn angitt. Uforutsigbart leveringstidspunkt
Leveringen kunne tatt mindre tid.
Hjalp denne anmeldelsen deg?
0 av 1 synes at denne anmeldelsen var nyttig.
Hjalp denne anmeldelsen deg?
0 av 2 synes at denne anmeldelsen var nyttig.
Hjalp denne anmeldelsen deg?
Hjalp denne anmeldelsen deg?
0 av 1 synes at denne anmeldelsen var nyttig.
Hjalp denne anmeldelsen deg?
- Lave priser og stort utvalg
- Kun kvalitetsprodukter!
- Betal 14 dager etter levering uten ekstra kostnader!
- Rask leveranse!
- Hyggelig kundetjeneste!
- Våre kunnskapsrike og hyggelige kundebehandlere er her for å hjelpe deg og svare på spørsmål knyttet til kjøpet ditt!
Ved å bli medlem godtar du Hjemfint.no Retningslinjer for personvern.






