- Hage og utemiljø
- Baderomsinnredning
- Dører og porter
- Verktøy og redskap
- Drivhus
- Vinduer
- Lagerrydding
- Sport og fritid
- Treningsapparater
- Boder og hytter i byggesett
- Hjem og dekor
- Hus og bygg
- Bil og garasje
- Tilbud
- Nyheter
- Outlet
- Alle produkter
- Varemerker
Anneks Katja D .V2 - 23,1 m²
Dette produktet er utgått
Begynner du å gå tom for plass og vil utvide praktisk og enkelt? Kanskje et gjesterom på tomten, et uthus, bod eller et eget hus for tenåringsbarna? Et anneks kan også fungere bra som for eksempel en kolonihytte eller sommerhus. Dette er mulig takket være forskrifter om annekser som tillater at det bygges et fritt antall annekser på maksimalt 25 kvm som et tilskudd til et en- eller tomannsbolig. Bare husk at mønehøyden ikke må overstige 4 meter. I motsetning til boder, kan annekser ikke bare brukes som et tilleggsbygg, men kan også innredes og brukes som uavhengig bolig. Ta gjerne kontakt med Plan- og Bygningsetaten angående ytterligere bestemmelser for annekser.
Dette byggesettet kommer med terrasse.
Monteringsklart:
Dette annekset leveres som et komplett sett og monteres enkelt etter den vedlagte tegningen. Byggets design og konstruksjon gjør det både enkelt å montere og stabilt. Alt materiale leveres ubehandlet, det anbefales at du behandler det tidlig med grunningsolje, grunning eller dekkfarge. Inkludert alt du trenger for montering, dvs. spiker, skruer etc.
Tak & golv:
Tak og gulv består av 18 mm rupanel, dette er inkludert i settet. Også behandlede bærebjelker til fundamentet er inkludert. Selve fundamentet må du lage selv, materiale til dette er ikke inkludert. Hvordan fundamentet lages avhenger av jordforholdene, husets utseende og hva du foretrekker. Enten kan en plate støpes eller en sokkelbunn på for eksempel hageplater eller leca-blokker.
Taktekke:
Taktekke er ikke inkludert, men kan velges til.
Mål & Spesifikasjoner:
- Materiale: Nordisk gran
- Veggtykkelse: 44 mm
- Antall rom: 1
- Behandling: Ubehandlet
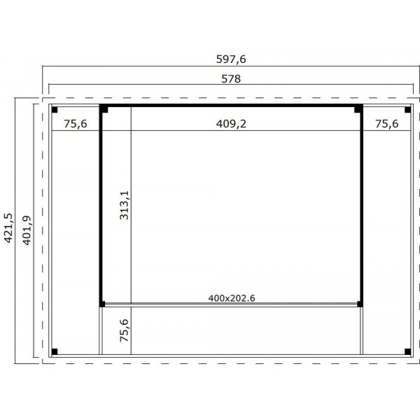
- Regelmål: 401.9 x 578 cm
- Veggmål: 401.9 x 578 cm
- Dimensjon fundamentbord: 45x70 mm
- Gulvareal: 22.38 m²
- Volum: 51.65 m³
- Vegghøyde: 222.3 cm
- Mønehøyde: 239.4 cm
- Takoverheng: 10 cm
- Dimensjon Takbord: 18x90 mm
- Takareal: 24.46 m²
- Takvinkel: 2.1 °
- Dimensjon gulvbord: 18x90 mm
- Dører:
- Type dør: Skyvedør
- Antall: 1 stk
- Dørmål: 4000 x 2026 mm
Slik håndterer vi kundeanmeldelser
Vi sikrer at våre produktanmeldelser kommer fra ekte kunder gjennom følgende prosess:
Etter hver levert bestilling sender vi en unik lenke til kunden via e-post. Gjennom denne lenken kan kunden kun anmelde de spesifikke produktene som inngikk i den aktuelle bestillingen – ingen andre produkter kan anmeldes via samme lenke. På anmeldelsessiden har kunden også mulighet til å vurdere oss som forhandler. Denne metoden garanterer at alle anmeldelser kommer fra kunder som faktisk har kjøpt og mottatt produktene de anmelder.
Publisering av anmeldelserVi publiserer alle anmeldelser som følger våre retningslinjer, uavhengig av vurdering. Det betyr at både positive og negative tilbakemeldinger vises, så lenge de ikke inneholder upassende språk, personangrep eller mangler relevans.
Anmeldelser som kun gjelder leveringsproblemer (f.eks. forsinkelser) publiseres ikke på produktsiden, siden de ikke vurderer selve produktet. Slike tilbakemeldinger kan derimot gis i vurderingen av oss som forhandler.
Beregning av gjennomsnittlig vurderingDen gjennomsnittlige vurderingen for et produkt vises som et gjennomsnitt av alle publiserte anmeldelser for akkurat det produktet.
Les merBrakes doesn't work properly even with adjustments
Jeg har avbestilt varen!
Litt lengre leveringstid
Bare levert før tiden, sjåfør sendte bilde av leveranse🤩
Fikk de eg skulle å grei levering
Rett produkt og lett å bestille. Varene kom etter 5 uker. Så en konkurrent oppga 8 ukers leveringstid, så dette var bra. Savnet en melding med sporingsnummer da varen ble sendt. Ellers fornøyd
Enkel bestilling og kjapp levering
Fikk varen som avtalt, god kundeservice.
Leveringen kunne tatt mindre tid.
Fek ikkje varen, men gid informaasjon.
Fikk varen som bestilt men det var først etter at jeg hadde bestilt inkludert betalt at dere opplyste det var mye å gjøre og varene blir forsinket etter standard leveringstider. Ikke bra!
0 av 1 synes at denne anmeldelsen var nyttig.
Hjalp denne anmeldelsen deg?
Hjalp denne anmeldelsen deg?
1 av 1 synes at denne anmeldelsen var nyttig.
Hjalp denne anmeldelsen deg?
2 av 3 synes at denne anmeldelsen var nyttig.
Hjalp denne anmeldelsen deg?
0 av 1 synes at denne anmeldelsen var nyttig.
Hjalp denne anmeldelsen deg?
- Lave priser og stort utvalg
- Kun kvalitetsprodukter!
- Betal 14 dager etter levering uten ekstra kostnader!
- Rask leveranse!
- Hyggelig kundetjeneste!
- Våre kunnskapsrike og hyggelige kundebehandlere er her for å hjelpe deg og svare på spørsmål knyttet til kjøpet ditt!
Ved å bli medlem godtar du Hjemfint.no Retningslinjer for personvern.














