Arne F Anneks - 11 m²
Dette produktet er utgått
Begynner du å få liten plass og ønsker å utvide på en praktisk og lett måte? Kanskje et gjestestue på eiendommen, et uthus, lagerrom eller eget hus til tenåringen? et anneks kan også fungere godt som for eksempel en kolonihytte eller sommerhus.
Monteringsferdig
Denne Anneksen leveres som et komplett byggesett og monteres enkelt etter den medfølgende tegningen. Hytta er laget med tømmerformet design og struktur noe som gjør den både lettmontert og stabil. Alt materiale leveres ubehandlet, så det anbefales å behandle med olje, grunnmaling eller dekkfarge så tidlig som mulig. Inkludert alt du trenger for montering, dvs. spiker, skruer etc.
Tak/gulv og grunn
Tak og gulv består av 18 mm not og fjær som er inkludert i byggesettet. Behandlede bærebjelker er også inkludert. Selve grunnmuren må man sette opp selv og materiale til dette er ikke inkludert. Hvilken grunnmur man skal lage avhenger av jordsmonn, utseende på huset og hva man foretrekker. Man kan enten støpe en plate eller bruke en plategrunn av f.eks hageplater eller lette lecablokker.
Underlagspapp er inkludert. Det anbefales at taket dekkes med ekstra beskyttelse for lang holdbarhet. Slitesterk og holdbar selvklebende takpapp kan kjøpes til.
Leveres med 5 års garanti.
- Materiell: Nordisk gran
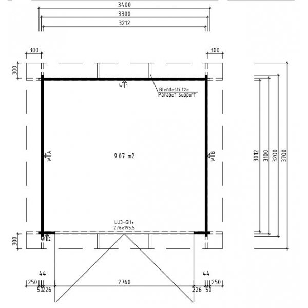
- Yttermål vegger: 340X320 cm
- Vegghøyde: 2,05 m
- Mønehøyde: 2,45 m
- Veggtykkelse: 44 mm
- Gulvplass: 9 m²
- Takareal: Ca 10 m²
- Gulv: 18 mm
- Dør: Dobbel skyvedør med glass (1,43 X 1,95 m), inkludert sylinderlås og håndtak
- Vindu: 2 x solide vinduer, 1-lags (3 mm)
NB! Lossing inngår ikke for denne leveringen. For å kunne ta imot dette produktet kan det være at du må ha tilgang til truck eller hjullaster.
Les mer
Slik håndterer vi kundeanmeldelser
Vi sikrer at våre produktanmeldelser kommer fra ekte kunder gjennom følgende prosess:
Etter hver levert bestilling sender vi en unik lenke til kunden via e-post. Gjennom denne lenken kan kunden kun anmelde de spesifikke produktene som inngikk i den aktuelle bestillingen – ingen andre produkter kan anmeldes via samme lenke. På anmeldelsessiden har kunden også mulighet til å vurdere oss som forhandler. Denne metoden garanterer at alle anmeldelser kommer fra kunder som faktisk har kjøpt og mottatt produktene de anmelder.
Publisering av anmeldelserVi publiserer alle anmeldelser som følger våre retningslinjer, uavhengig av vurdering. Det betyr at både positive og negative tilbakemeldinger vises, så lenge de ikke inneholder upassende språk, personangrep eller mangler relevans.
Anmeldelser som kun gjelder leveringsproblemer (f.eks. forsinkelser) publiseres ikke på produktsiden, siden de ikke vurderer selve produktet. Slike tilbakemeldinger kan derimot gis i vurderingen av oss som forhandler.
Beregning av gjennomsnittlig vurderingDen gjennomsnittlige vurderingen for et produkt vises som et gjennomsnitt av alle publiserte anmeldelser for akkurat det produktet.
Les merBestilling gikk raskt og smerte fritt, Leveringstid var estimert til 15 dager, kom på døren etter 17 dager så det er innenfor. Kommer til å bestille igjen.
Brakes doesn't work properly even with adjustments
Fornøyd. Fint brukt og prisen
God service, raskt svar på henvendelse. Litt lang leveringstid på varene, men helt uproblematisk i mitt tilfelle.
leveringstiden er langt.
Enkel bestilling og kjapp levering
Er fornøyd både med kundebetjeinga var enkelt å bestille.Varen kom som ventet fikk levert på trappa,supert.
Litt lengre leveringstid
Leveringen kunne tatt mindre tid.
Jeg er utrolig fornøyd
Fek ikkje varen, men gid informaasjon.
1 av 1 synes at denne anmeldelsen var nyttig.
Hjalp denne anmeldelsen deg?
Hjalp denne anmeldelsen deg?
4 av 5 synes at denne anmeldelsen var nyttig.
Hjalp denne anmeldelsen deg?
Hjalp denne anmeldelsen deg?
1 av 1 synes at denne anmeldelsen var nyttig.
Hjalp denne anmeldelsen deg?
Hjalp denne anmeldelsen deg?
Hjalp denne anmeldelsen deg?
1 av 2 synes at denne anmeldelsen var nyttig.
Hjalp denne anmeldelsen deg?
0 av 1 synes at denne anmeldelsen var nyttig.
Hjalp denne anmeldelsen deg?
- Lave priser og stort utvalg
- Kun kvalitetsprodukter!
- Betal 14 dager etter levering uten ekstra kostnader!
- Rask leveranse!
- Hyggelig kundetjeneste!
- Våre kunnskapsrike og hyggelige kundebehandlere er her for å hjelpe deg og svare på spørsmål knyttet til kjøpet ditt!
Ved å bli medlem godtar du Hjemfint.no Retningslinjer for personvern.






