Feriehus Olafh - 44,3 m²
Dette produktet er utgått
Begynner du å gå tom for plass og ønsker å utvide på en praktisk og fleksibel måte? Kanskje en gjestehytte på eiendommen, et uthus, bod eller et eget hus for tenåringsbarna? En enebolig kan også fungere godt som for eksempel kolonihytte eller sommerhytte.
Byggetillatelse
Dette byggesettet er underlagt reglene for Attefallshus, hvor det kan bygges et hvilket som helst antall med et maksimalt areal på 25 kvadratmeter som et supplement til et en- eller to-bolig hus. Husk at totalhøyden ikke må overstige 4 meter. I motsetning til friggebodar kan attefallhus ikke bare brukes som komplementærbygg, men også innredes og brukes som selvstendige boliger.
Sjekk gjerne med Boligtilsynet angående tilleggsbestemmelser vedrørende frigjorte hytter.
Klar til å montere ved levering
Dette tilfluktshuset leveres som et komplett byggesett og er en enkel gjør-det-selv-løsning å montere i henhold til vedlagte tegning. Alt medfølger som trengs for en komplett montering, dvs. spiker, skruer osv.
Leveres ubehandlet
Alle materialer i dette settet leveres ubehandlet. Derfor anbefales det å behandle materialet tidlig med baseolje, utvendig primer eller toppstrøk.
Grunnleggende
Du står selv for stiftelsen, materialer til dette er ikke inkludert. Hvordan fundamentet lages avhenger helt av jordforholdene, husets utseende og hva du foretrekker. Enten kan det støpes en plate eller det kan brukes sokkelunderlag på for eksempel hagefliser eller lettklinkerblokker.
Gulv
Tregulv for dette settet er inkludert.
Takbelegg
Takbelegg til dette byggesettet er ikke inkludert, men kan kjøpes separat.
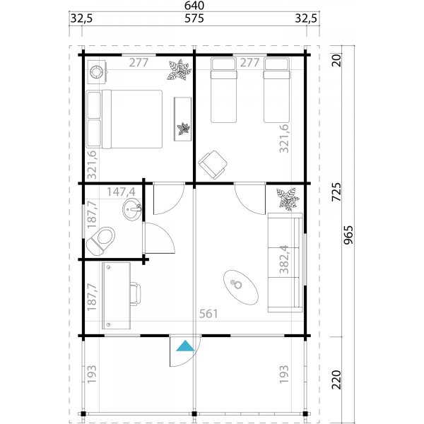
Spesifikasjoner og mål:
- Materiale: Nordisk gran
- Veggtykkelse: 70 mm
- Antall rom: 4
- Behandling: ubehandlet
- Standardmål: 595x745 cm
- Veggmål: 575x725 cm
- Fundamentplater: 45x70
- Grunnflate: 39,89 m²
- Volum: 108,73 m³
- Vegghøyde: 224,4 cm
- Topphøyde: 326,4 cm
- Takk overheng foran: 220 cm
- Takplater: 18x90
- Takareal: 65,62 m²
- Takhelling: 19,8°
- Gulvbord: 28x137
- Dører:
- Type dør: Enkel dør
- Antall: 4 stk
- Dørmål: 827x2000
- Vindu:
- Type vindu: Enkelt vindu, åpnes innover
- Antall: 4 stk
- Vindusmål: 916x1050
- Type vindu: Dobbelt vindu, åpnes innover
- Antall: 2 stk
- Vindusmål: 1374x1050
Slik håndterer vi kundeanmeldelser
Vi sikrer at våre produktanmeldelser kommer fra ekte kunder gjennom følgende prosess:
Etter hver levert bestilling sender vi en unik lenke til kunden via e-post. Gjennom denne lenken kan kunden kun anmelde de spesifikke produktene som inngikk i den aktuelle bestillingen – ingen andre produkter kan anmeldes via samme lenke. På anmeldelsessiden har kunden også mulighet til å vurdere oss som forhandler. Denne metoden garanterer at alle anmeldelser kommer fra kunder som faktisk har kjøpt og mottatt produktene de anmelder.
Publisering av anmeldelserVi publiserer alle anmeldelser som følger våre retningslinjer, uavhengig av vurdering. Det betyr at både positive og negative tilbakemeldinger vises, så lenge de ikke inneholder upassende språk, personangrep eller mangler relevans.
Anmeldelser som kun gjelder leveringsproblemer (f.eks. forsinkelser) publiseres ikke på produktsiden, siden de ikke vurderer selve produktet. Slike tilbakemeldinger kan derimot gis i vurderingen av oss som forhandler.
Beregning av gjennomsnittlig vurderingDen gjennomsnittlige vurderingen for et produkt vises som et gjennomsnitt av alle publiserte anmeldelser for akkurat det produktet.
Les merJeg har avbestilt varen!
Bare levert før tiden, sjåfør sendte bilde av leveranse🤩
Fek ikkje varen, men gid informaasjon.
God service, raskt svar på henvendelse. Litt lang leveringstid på varene, men helt uproblematisk i mitt tilfelle.
Fikk de eg skulle å grei levering
Fikk varen som bestilt men det var først etter at jeg hadde bestilt inkludert betalt at dere opplyste det var mye å gjøre og varene blir forsinket etter standard leveringstider. Ikke bra!
Leveringen kunne tatt mindre tid.
Fikk varen som avtalt, god kundeservice.
Er fornøyd både med kundebetjeinga var enkelt å bestille.Varen kom som ventet fikk levert på trappa,supert.
Brakes doesn't work properly even with adjustments
Grei bestilling men alt for sen leveranse. Flere uker senere enn angitt. Uforutsigbart leveringstidspunkt
Hjalp denne anmeldelsen deg?
0 av 1 synes at denne anmeldelsen var nyttig.
Hjalp denne anmeldelsen deg?
Hjalp denne anmeldelsen deg?
1 av 1 synes at denne anmeldelsen var nyttig.
Hjalp denne anmeldelsen deg?
Hjalp denne anmeldelsen deg?
1 av 2 synes at denne anmeldelsen var nyttig.
Hjalp denne anmeldelsen deg?
0 av 1 synes at denne anmeldelsen var nyttig.
Hjalp denne anmeldelsen deg?
Hjalp denne anmeldelsen deg?
0 av 2 synes at denne anmeldelsen var nyttig.
Hjalp denne anmeldelsen deg?
- Lave priser og stort utvalg
- Kun kvalitetsprodukter!
- Betal 14 dager etter levering uten ekstra kostnader!
- Rask leveranse!
- Hyggelig kundetjeneste!
- Våre kunnskapsrike og hyggelige kundebehandlere er her for å hjelpe deg og svare på spørsmål knyttet til kjøpet ditt!
Ved å bli medlem godtar du Hjemfint.no Retningslinjer for personvern.








