Fribod Clark B - 11,7 m²
Dette produktet er utgått
Begynner du å gå tom for plass og vil utvide praktisk og enkelt? Kanskje et gjesterom på tomten, et uthus, bod eller et eget hus for tenåringsbarna? En fribod kan også fungere bra som for eksempel en kolonihytte eller sommerhus. Dette er mulig takket være forskrifter om frittstående boder som gjør det mulig å bygge et fritt antall frittstående boder på maksimalt 15 kvm som et tilskudd til en en- eller tomannsbolig. Bare husk at høyden ikke må overstige 3 meter. Ta gjerne kontakt med Plan- og Bygningsetaten angående ytterligere bestemmelser for frittstående boder.
Monteringsklart:
Denne boden leveres som et komplett byggesett og monteres enkelt etter medfølgende tegning. Byggets design og konstruksjon gjør det både lettmontert og stabilt. Alt materiale leveres ubehandlet, det anbefales at du behandler det tidlig med grunningsolje, grunning eller dekkfarge. Inkludert alt du trenger for montering, dvs. spiker, skruer etc.
tak og gulv:
Tak og gulv består av 18 mm rupanel, dette er inkludert i settet. Også behandlede bærebjelker til fundamentet er inkludert. Selve fundamentet må du lage selv, materiale til dette er ikke inkludert. Hvordan fundamentet lages avhenger av jordforholdene, husets utseende og hva du foretrekker. Enten kan en plate støpes eller en sokkelbunn på for eksempel hageplater eller leca-blokker.
Taktekke:
Taktekke er ikke inkludert, men kan velges til.
Mål & Spesifikasjoner:
- Materiale: Nordisk gran
- Veggtykkelse: 34 mm
- Antall rom: 1
- Behandling: Ubehandlet
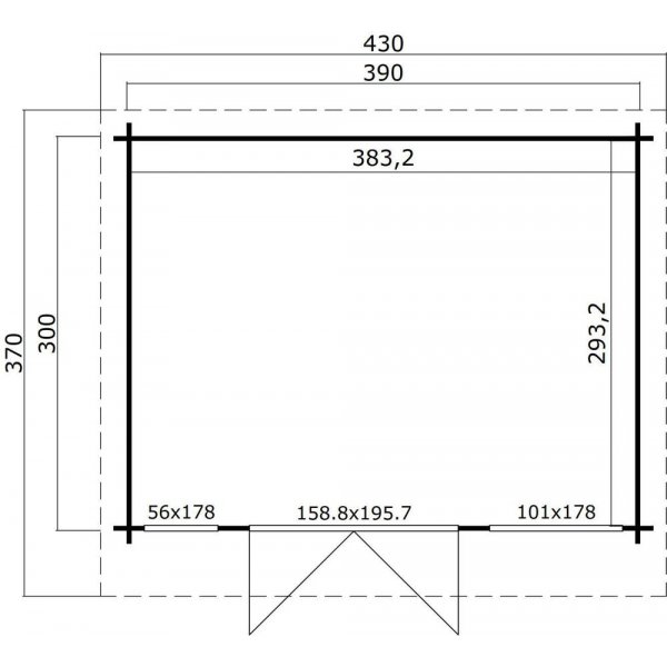
- Regelmål: 320 x 410 cm
- Veggmål: 300 x 390 cm
- Dimensjon fundamentbord: 45x70 mm
- Gulvareal: 11.24 m²
- Volum: 25.3 m³
- Vegghøyde: 210.9 cm
- Mønehøyde: 239.4 cm
- Takoverheng: 20 cm
- Dimensjon Takbord: 18x90 mm
- Takareal: 15.96 m²
- Takvinkel: 4.4 °
- Dimensjon gulvbord: 18x90 mm
- Dører:
- Type dør: Dobbeldør
- Antall: 1 stk
- Dørmål: 1588 x 1957 mm
- Type vindu: Enkeltvindu, åpner inn
- Antall vinduer: 1 stk
- Vindusmål: 560 x 1780 mm
- Type vindu: Dobbeltvindu, fast
- Antall vinduer: 1 stk
- Vindusmål: 1010 x 1780 mm
Slik håndterer vi kundeanmeldelser
Vi sikrer at våre produktanmeldelser kommer fra ekte kunder gjennom følgende prosess:
Etter hver levert bestilling sender vi en unik lenke til kunden via e-post. Gjennom denne lenken kan kunden kun anmelde de spesifikke produktene som inngikk i den aktuelle bestillingen – ingen andre produkter kan anmeldes via samme lenke. På anmeldelsessiden har kunden også mulighet til å vurdere oss som forhandler. Denne metoden garanterer at alle anmeldelser kommer fra kunder som faktisk har kjøpt og mottatt produktene de anmelder.
Publisering av anmeldelserVi publiserer alle anmeldelser som følger våre retningslinjer, uavhengig av vurdering. Det betyr at både positive og negative tilbakemeldinger vises, så lenge de ikke inneholder upassende språk, personangrep eller mangler relevans.
Anmeldelser som kun gjelder leveringsproblemer (f.eks. forsinkelser) publiseres ikke på produktsiden, siden de ikke vurderer selve produktet. Slike tilbakemeldinger kan derimot gis i vurderingen av oss som forhandler.
Beregning av gjennomsnittlig vurderingDen gjennomsnittlige vurderingen for et produkt vises som et gjennomsnitt av alle publiserte anmeldelser for akkurat det produktet.
Les merLeveringen kunne tatt mindre tid.
Brakes doesn't work properly even with adjustments
Fornøyd. Fint brukt og prisen
Rett produkt og lett å bestille. Varene kom etter 5 uker. Så en konkurrent oppga 8 ukers leveringstid, så dette var bra. Savnet en melding med sporingsnummer da varen ble sendt. Ellers fornøyd
👍🏼
Grei bestilling men alt for sen leveranse. Flere uker senere enn angitt. Uforutsigbart leveringstidspunkt
Bestilling gikk raskt og smerte fritt, Leveringstid var estimert til 15 dager, kom på døren etter 17 dager så det er innenfor. Kommer til å bestille igjen.
Fikk de eg skulle å grei levering
Bestillingen gikk greit og enkelt.
leveringstiden er langt.
Jeg er utrolig fornøyd
1 av 2 synes at denne anmeldelsen var nyttig.
Hjalp denne anmeldelsen deg?
0 av 2 synes at denne anmeldelsen var nyttig.
Hjalp denne anmeldelsen deg?
Hjalp denne anmeldelsen deg?
Hjalp denne anmeldelsen deg?
Hjalp denne anmeldelsen deg?
1 av 1 synes at denne anmeldelsen var nyttig.
Hjalp denne anmeldelsen deg?
Hjalp denne anmeldelsen deg?
Hjalp denne anmeldelsen deg?
Hjalp denne anmeldelsen deg?
- Lave priser og stort utvalg
- Kun kvalitetsprodukter!
- Betal 14 dager etter levering uten ekstra kostnader!
- Rask leveranse!
- Hyggelig kundetjeneste!
- Våre kunnskapsrike og hyggelige kundebehandlere er her for å hjelpe deg og svare på spørsmål knyttet til kjøpet ditt!
Ved å bli medlem godtar du Hjemfint.no Retningslinjer for personvern.














