- Hage og utemiljø
 - Verktøy og redskap
 - Baderomsinnredning
 - Dører og porter
 - Drivhus
 - Lagerrydding
 - Sport og fritid
 - Treningsapparater
 - Vinduer
 - Hjem og dekor
 - Boder og hytter i byggesett
 - Hus og bygg
 - Bil og garasje
 - Tilbud
 - Nyheter
 - Outlet
 - Alle produkter
 - Varemerker
 
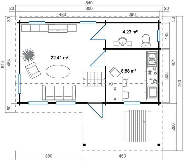
Fritidshus Barbro - 56,5 m²
Dette produktet er utgått
Begynner du å få litt dårlig med plass, og vil utvide på en praktisk og enkel måte? Kanskje et gjestehus på tomten, et anneks eller et eget hus til tenåringene? Et fritidshus passer dessuten bra som for eksempel hus på en kolonihage eller som sommerhytte. Barbro er et romslig hus med godt om lysinnslipp. Delt inn i tre rom separert med dører, pluss loft og terrasse.
Monteringsferdig
Dette huset leveres komplett som et byggesett, og monteres enkelt i henhold til den medfølgende tegningen. Bygningen har et laftet design og konstruksjon, noe som gjør den både lettmontert og stabil. Alt materiale leveres ubehandlet, det anbefales å raskt behandle med grunningsolje, grunning eller dekkmaling. Alt du trenger til montering er inkludert, dvs. spiker, skruer etc.
Tak/gulv og grunnmur
Tak og gulv er laget av 18 mm rupanel, dette følger med i byggesettet. Behandlede bærebjelker til grunnmuren følger også med. Selve grunnmuren får man gjøre selv, materiale til dette medfølger ikke. Hvordan fundamentet skal lages er avhengig av grunnforholdene, utseendet til huset og egne preferanser. Enten kan en såle støpes, eller så kan en fundamentgrunn med for eksempel heller eller lettklinkerblokker benyttes.
Takbelegg følger ikke med, men finnes å velge til.
- Materiale: Nordisk gran
 - Veggtykkelse: 70 mm
 - Yttermål vegger: 464x800 cm
 - Gulvareal: 35,37 m²
 - Størrelse terrasse: 19,28 m²
 - Mønehøyde: 374 cm
 - Vegghøyde: 244,8 cm
 - Takoverheng: 20 cm
 - Takareal: 60,7 m²
 - Takhelling: 20,6°
 - Vinduer: 3 x vinduer (916 x 916 mm) + 2 x vinduer (650 x 650 mm) + 3 x vinduer (1100 x 1729 mm), 2-glass 4/14/4 innadslående med tilt, underblekk i aluminium
 - Dør: 3 x (827 x 1933 mm), produsert i massiv furu med terskel i aluminium, inkl. låsesylinder og håndtak
 - Vekt: 3332 kg
 
NB! Lossing inngår ikke for denne leveringen. For å kunne ta imot dette produktet kan det være at du må ha tilgang til truck eller hjullaster.
Les mer
Les mer
							Slik håndterer vi kundeanmeldelser
Vi sikrer at våre produktanmeldelser kommer fra ekte kunder gjennom følgende prosess:
Etter hver levert bestilling sender vi en unik lenke til kunden via e-post. Gjennom denne lenken kan kunden kun anmelde de spesifikke produktene som inngikk i den aktuelle bestillingen – ingen andre produkter kan anmeldes via samme lenke. På anmeldelsessiden har kunden også mulighet til å vurdere oss som forhandler. Denne metoden garanterer at alle anmeldelser kommer fra kunder som faktisk har kjøpt og mottatt produktene de anmelder.
Publisering av anmeldelserVi publiserer alle anmeldelser som følger våre retningslinjer, uavhengig av vurdering. Det betyr at både positive og negative tilbakemeldinger vises, så lenge de ikke inneholder upassende språk, personangrep eller mangler relevans.
Anmeldelser som kun gjelder leveringsproblemer (f.eks. forsinkelser) publiseres ikke på produktsiden, siden de ikke vurderer selve produktet. Slike tilbakemeldinger kan derimot gis i vurderingen av oss som forhandler.
Beregning av gjennomsnittlig vurderingDen gjennomsnittlige vurderingen for et produkt vises som et gjennomsnitt av alle publiserte anmeldelser for akkurat det produktet.
Les mer
- Lave priser og stort utvalg
 - Kun kvalitetsprodukter!
 - Betal 14 dager etter levering uten ekstra kostnader!
 - Rask leveranse!
 - Hyggelig kundetjeneste!
 
- Våre kunnskapsrike og hyggelige kundebehandlere er her for å hjelpe deg og svare på spørsmål knyttet til kjøpet ditt!
 
Ved å bli medlem godtar du Hjemfint.no Retningslinjer for personvern.










