- Hage og utemiljø
- Baderomsinnredning
- Dører og porter
- Drivhus
- Verktøy og redskap
- Vinduer
- Sport og fritid
- Treningsapparater
- Boder og hytter i byggesett
- Lagerrydding
- Hjem og dekor
- Hus og bygg
- Bil og garasje
- Påskerbjudanden
- Tilbud
- Nyheter
- Outlet
- Alle produkter
- Varemerker
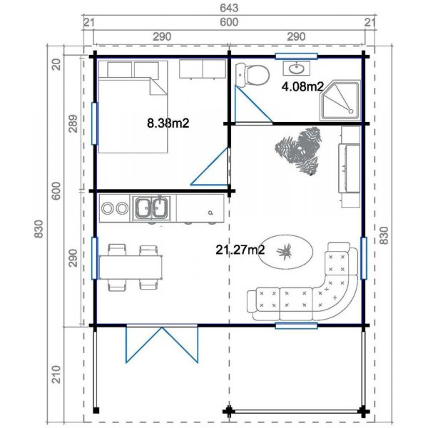
Fritidshus Jeanne - 47,5 m²
Dette produktet er utgått
Begynner du å få litt dårlig med plass, og vil utvide på en praktisk og enkel måte? Kanskje et gjestehus på tomten, et anneks eller et eget hus til tenåringene? Et fritidshus passer dessuten bra som for eksempel hus på en kolonihage eller som sommerhytte. Huset er romslig med tre rom å innrede etter eget ønske. Stor herlig terrasse med tak over, noe som er praktisk og deilig på fine vår- og sommerdager.
Monteringsferdig
Dette huset leveres komplett som et byggesett, og monteres enkelt i henhold til den medfølgende tegningen. Bygningen har et laftet design og konstruksjon, noe som gjør den både lettmontert og stabil. Alt materiale leveres ubehandlet, det anbefales å raskt behandle med grunningsolje, grunning eller dekkmaling. Alt du trenger til montering er inkludert, dvs. spiker, skruer etc.
Tak/gulv og grunnmur
Tak og gulv er laget av 18 mm rupanel, dette følger med i byggesettet. Behandlede bærebjelker til grunnmuren følger også med. Selve grunnmuren får man gjøre selv, materiale til dette medfølger ikke. Hvordan fundamentet skal lages er avhengig av grunnforholdene, utseendet til huset og egne preferanser. Enten kan en såle støpes, eller så kan en fundamentgrunn med for eksempel heller eller lettklinkerblokker benyttes.
Takbelegg følger ikke med, men kan velges til.
- Materiale: Nordisk gran
- Veggtykkelse: 70 mm
- Yttermål vegger: 600x600 cm
- Gulvareal: 34,34 m²
- Størrelse terrasse: 11,4 m²
- Mønehøyde: 326,4 cm
- Vegghøyde: 224,4 cm
- Takoverheng: 210 cm
- Takareal: 58,1 m²
- Takhelling: 18,8°
- Vinduer: 5 x vinduer (916 x 1050 mm), 2-glass 4/14/4 innadslående med tilt, underblekk i aluminium
- Dør: 1 x dør (1580 x 2000 mm) + 2 x dører (827 x 2000 mm), produsert i massiv furu med terskel i aluminium, inkl. låsesylinder og håndtak
NB! Lossing inngår ikke for denne leveringen. For å kunne ta imot dette produktet kan det være at du må ha tilgang til truck eller hjullaster.
Les mer
Les mer
Slik håndterer vi kundeanmeldelser
Vi sikrer at våre produktanmeldelser kommer fra ekte kunder gjennom følgende prosess:
Etter hver levert bestilling sender vi en unik lenke til kunden via e-post. Gjennom denne lenken kan kunden kun anmelde de spesifikke produktene som inngikk i den aktuelle bestillingen – ingen andre produkter kan anmeldes via samme lenke. På anmeldelsessiden har kunden også mulighet til å vurdere oss som forhandler. Denne metoden garanterer at alle anmeldelser kommer fra kunder som faktisk har kjøpt og mottatt produktene de anmelder.
Publisering av anmeldelserVi publiserer alle anmeldelser som følger våre retningslinjer, uavhengig av vurdering. Det betyr at både positive og negative tilbakemeldinger vises, så lenge de ikke inneholder upassende språk, personangrep eller mangler relevans.
Anmeldelser som kun gjelder leveringsproblemer (f.eks. forsinkelser) publiseres ikke på produktsiden, siden de ikke vurderer selve produktet. Slike tilbakemeldinger kan derimot gis i vurderingen av oss som forhandler.
Beregning av gjennomsnittlig vurderingDen gjennomsnittlige vurderingen for et produkt vises som et gjennomsnitt av alle publiserte anmeldelser for akkurat det produktet.
Les mer
- Lave priser og stort utvalg
- Kun kvalitetsprodukter!
- Betal 14 dager etter levering uten ekstra kostnader!
- Rask leveranse!
- Hyggelig kundetjeneste!
- Våre kunnskapsrike og hyggelige kundebehandlere er her for å hjelpe deg og svare på spørsmål knyttet til kjøpet ditt!
Ved å bli medlem godtar du Hjemfint.no Retningslinjer for personvern.






