Garasje Omar - 33 m²
Dette produktet er utgått
Trenger du en beskyttelse til bilen, motorsykkelen, mopeden eller kanskje et kombinert verksted med oppbevaringsplass? Da kan denne garasjen være noe for deg. Kan velges uten garasjeport, med garasjeporter med sideåpning eller leddporter.
Monteringsferdig
Denne garasjen leveres komplett som et byggesett, og monteres enkelt i henhold til medfølgende tegning. Boden har et laftet design og konstruksjon, noe som gjør den lettmontert og stabil. Alt materiale leveres ubehandlet, det anbefales å raskt behandle med grunningsolje, grunning eller dekkmaling. Alt som er nødvendig for montering følger med, dvs. spiker, skruer etc.
Tak og grunnmur
Tak er laget av 18 mm rupanel, dette følger med i byggesettet. Behandlede bærebjelker til grunnmuren følger også med. Selve grunnmuren får man gjøre selv, materiale til dette medfølger ikke. Til en garasje kan det være passende med en stabil støpt såle.
Det anbefales at taket dekkes med beskyttelse for lang levetid, slitesterk og motstandsdyktig selvklebende takpapp finnes som tilvalg. Sideveggene kan speilvendes ved montering, hvis det er ønskelig med dør og vinduer på motsatt side.
Leveres med 5 års garanti.
- Materiale: Nordisk gran
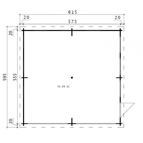
- Yttermål vegger: 575x575 cm
- Vegghøyde: 2,3 m
- Mønehøyde: 2,7 m
- Veggtykkelse: 44 mm
- Gulvareal: 31 m²
- Takareal: Ca 36 m²
- Gulv: Ikke noe gulv
- Dør: 1 x dør (0,84 x 1,95 m) inkludert sylinderlås og håndtak, 2 x garasjedører (2,37 x 1,96 m). Standard er uten garasjeporter, sidedører eller leddport kan velges til
- Vinduer: 3 x åpningsbare vinduer (0,91 x 0,51 m), 2-glass (2x3 mm)
NB! Lossing inngår ikke for denne leveringen. For å kunne ta imot dette produktet kan det være at du må ha tilgang til truck eller hjullaster.
Les mer
Les mer
Slik håndterer vi kundeanmeldelser
Vi sikrer at våre produktanmeldelser kommer fra ekte kunder gjennom følgende prosess:
Etter hver levert bestilling sender vi en unik lenke til kunden via e-post. Gjennom denne lenken kan kunden kun anmelde de spesifikke produktene som inngikk i den aktuelle bestillingen – ingen andre produkter kan anmeldes via samme lenke. På anmeldelsessiden har kunden også mulighet til å vurdere oss som forhandler. Denne metoden garanterer at alle anmeldelser kommer fra kunder som faktisk har kjøpt og mottatt produktene de anmelder.
Publisering av anmeldelserVi publiserer alle anmeldelser som følger våre retningslinjer, uavhengig av vurdering. Det betyr at både positive og negative tilbakemeldinger vises, så lenge de ikke inneholder upassende språk, personangrep eller mangler relevans.
Anmeldelser som kun gjelder leveringsproblemer (f.eks. forsinkelser) publiseres ikke på produktsiden, siden de ikke vurderer selve produktet. Slike tilbakemeldinger kan derimot gis i vurderingen av oss som forhandler.
Beregning av gjennomsnittlig vurderingDen gjennomsnittlige vurderingen for et produkt vises som et gjennomsnitt av alle publiserte anmeldelser for akkurat det produktet.
Les merLeveringen kunne tatt mindre tid.
Litt problemer med transporten. Jeg var kanskje litt utålmodig. Alt ordner seg til slutt.
Bestillingen gikk greit og enkelt.
Fikk varen som bestilt men det var først etter at jeg hadde bestilt inkludert betalt at dere opplyste det var mye å gjøre og varene blir forsinket etter standard leveringstider. Ikke bra!
Fek ikkje varen, men gid informaasjon.
Er fornøyd både med kundebetjeinga var enkelt å bestille.Varen kom som ventet fikk levert på trappa,supert.
Fornøyd med varer og service
Fikk de eg skulle å grei levering
Litt lengre leveringstid
Rett produkt og lett å bestille. Varene kom etter 5 uker. Så en konkurrent oppga 8 ukers leveringstid, så dette var bra. Savnet en melding med sporingsnummer da varen ble sendt. Ellers fornøyd
Grei bestilling men alt for sen leveranse. Flere uker senere enn angitt. Uforutsigbart leveringstidspunkt
0 av 2 synes at denne anmeldelsen var nyttig.
Hjalp denne anmeldelsen deg?
Hjalp denne anmeldelsen deg?
0 av 2 synes at denne anmeldelsen var nyttig.
Hjalp denne anmeldelsen deg?
0 av 1 synes at denne anmeldelsen var nyttig.
Hjalp denne anmeldelsen deg?
1 av 1 synes at denne anmeldelsen var nyttig.
Hjalp denne anmeldelsen deg?
Hjalp denne anmeldelsen deg?
1 av 2 synes at denne anmeldelsen var nyttig.
Hjalp denne anmeldelsen deg?
Hjalp denne anmeldelsen deg?
0 av 1 synes at denne anmeldelsen var nyttig.
Hjalp denne anmeldelsen deg?
- Lave priser og stort utvalg
- Kun kvalitetsprodukter!
- Betal 14 dager etter levering uten ekstra kostnader!
- Rask leveranse!
- Hyggelig kundetjeneste!
- Våre kunnskapsrike og hyggelige kundebehandlere er her for å hjelpe deg og svare på spørsmål knyttet til kjøpet ditt!
Ved å bli medlem godtar du Hjemfint.no Retningslinjer for personvern.






