- Hage og utemiljø
- Baderomsinnredning
- Dører og porter
- Verktøy og redskap
- Drivhus
- Vinduer
- Treningsapparater
- Lagerrydding
- Sport og fritid
- Boder og hytter i byggesett
- Hjem og dekor
- Hus og bygg
- Bil og garasje
- Tilbud
- Nyheter
- Outlet
- Alle produkter
- Varemerker
Friggebod Logan - 12,3 m²
Dette produktet er utgått
Begynner du å gå tom for plass og ønsker å utvide på en praktisk og fleksibel måte? Kanskje en gjestehytte på eiendommen, et uthus, bod eller et eget hus for tenåringsbarna? En bod kan også fungere fint som for eksempel kolonihytte eller sommerhytte.
Byggetillatelse
Dette byggesettet er underlagt reglene for Friggebodar, hvor det kan bygges et hvilket som helst antall med et samlet areal på 15 kvadratmeter i tilknytning til et en- eller to-bolig hus. Husk at totalhøyden ikke må overstige 3 meter.
Sjekk gjerne med Boligtilsynet angående tilleggsbestemmelser vedrørende frigjorte hytter.
Klar til å montere ved levering
Denne boden leveres som et komplett byggesett og er en enkel gjør-det-selv-løsning å montere i henhold til vedlagte tegning. Alt medfølger som trengs for en komplett montering, dvs. spiker, skruer osv.
Leveres ubehandlet
Alle materialer i dette settet leveres ubehandlet. Derfor anbefales det å behandle materialet tidlig med baseolje, utvendig primer eller toppstrøk.
Grunnleggende
Du står selv for stiftelsen, materialer til dette er ikke inkludert. Hvordan fundamentet lages avhenger helt av jordforholdene, husets utseende og hva du foretrekker. Enten kan det støpes en plate eller det kan brukes sokkelunderlag på for eksempel hagefliser eller lettklinkerblokker.
Gulv
Tregulv til dette byggesettet er ikke inkludert, men kan kjøpes separat.
Spesifikasjoner og mål:- Materiale: Nordisk gran
- Veggtykkelse: 28 mm
- Antall rom: 1 stk
- Behandling: ubehandlet
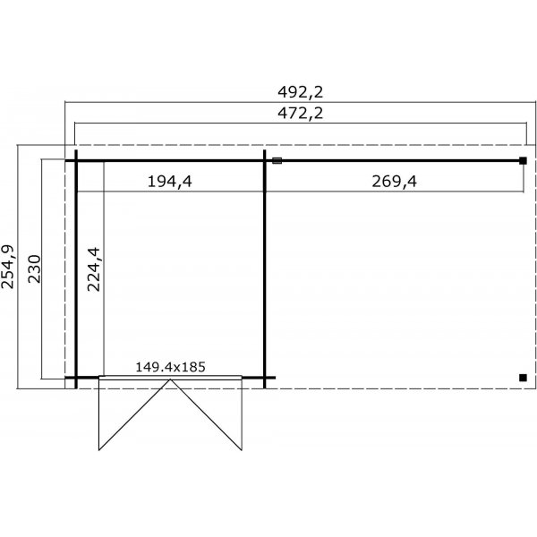
- Standardmål: 492,2x250 cm
- Veggmål: 472,2x230 cm
- Grunnflate: 10,47 m²
- Volum: 22,38 m³
- Vegghøyde: 210,9 cm
- Topphøyde: 216,6 cm
- Takk overheng foran: 10 cm
- Takplater: 15x90
- Takareal: 12,6 m²
- Takhelling: 1,5°
- Dører:
- Type dør: Dobbel dør
- Antall: 1 stk
- Dørmål: 1494x1850
Slik håndterer vi kundeanmeldelser
Vi sikrer at våre produktanmeldelser kommer fra ekte kunder gjennom følgende prosess:
Etter hver levert bestilling sender vi en unik lenke til kunden via e-post. Gjennom denne lenken kan kunden kun anmelde de spesifikke produktene som inngikk i den aktuelle bestillingen – ingen andre produkter kan anmeldes via samme lenke. På anmeldelsessiden har kunden også mulighet til å vurdere oss som forhandler. Denne metoden garanterer at alle anmeldelser kommer fra kunder som faktisk har kjøpt og mottatt produktene de anmelder.
Publisering av anmeldelserVi publiserer alle anmeldelser som følger våre retningslinjer, uavhengig av vurdering. Det betyr at både positive og negative tilbakemeldinger vises, så lenge de ikke inneholder upassende språk, personangrep eller mangler relevans.
Anmeldelser som kun gjelder leveringsproblemer (f.eks. forsinkelser) publiseres ikke på produktsiden, siden de ikke vurderer selve produktet. Slike tilbakemeldinger kan derimot gis i vurderingen av oss som forhandler.
Beregning av gjennomsnittlig vurderingDen gjennomsnittlige vurderingen for et produkt vises som et gjennomsnitt av alle publiserte anmeldelser for akkurat det produktet.
Les merLeveringen kunne tatt mindre tid.
leveringstiden er langt.
Fornøyd. Fint brukt og prisen
Litt lengre leveringstid
Fikk de eg skulle å grei levering
Jeg er utrolig fornøyd
Jeg har avbestilt varen!
Fornøyd med varer og service
Rett produkt og lett å bestille. Varene kom etter 5 uker. Så en konkurrent oppga 8 ukers leveringstid, så dette var bra. Savnet en melding med sporingsnummer da varen ble sendt. Ellers fornøyd
Fikk varen som bestilt men det var først etter at jeg hadde bestilt inkludert betalt at dere opplyste det var mye å gjøre og varene blir forsinket etter standard leveringstider. Ikke bra!
Enkel bestilling og kjapp levering
0 av 1 synes at denne anmeldelsen var nyttig.
Hjalp denne anmeldelsen deg?
0 av 2 synes at denne anmeldelsen var nyttig.
Hjalp denne anmeldelsen deg?
Hjalp denne anmeldelsen deg?
Hjalp denne anmeldelsen deg?
2 av 3 synes at denne anmeldelsen var nyttig.
Hjalp denne anmeldelsen deg?
- Lave priser og stort utvalg
- Kun kvalitetsprodukter!
- Betal 14 dager etter levering uten ekstra kostnader!
- Rask leveranse!
- Hyggelig kundetjeneste!
- Våre kunnskapsrike og hyggelige kundebehandlere er her for å hjelpe deg og svare på spørsmål knyttet til kjøpet ditt!
Ved å bli medlem godtar du Hjemfint.no Retningslinjer for personvern.












